Nieuw in verkoop:Rijksstraatweg 74, 2022 DC Haarlem - Foto
Nieuw in verkoop
+53

Rijksstraatweg 74 2022 DC Haarlem € 1.095.000,- k.k.

  • Woonhuis
  • 6 kamers
  • 5 slaapkamers
  • 2 badkamers
  • Bouwjaar 1920
  • 179 m² perceeloppervlakte
  • 170 m² gebruiksoppervlakte
  • A+ Energielabel A+

Beschrijving

FOR ENGLISH PLEASE SEE BELOW

Volledig gerenoveerde, verduurzaamde en karaktervolle gezinswoning (170 m²) met 5 slaapkamers, 2 badkamers, energielabel A+ en zonnige tuin op het zuidoosten!

Op een geliefde locatie in Haarlem-Noord, aan de fraaie Rijksstraatweg, staat deze bijzonder sfeervolle en tot in de puntjes afgewerkte tussenwoning. De woning is volledig gerenoveerd, inclusief leidingwerk, en heeft daarbij haar authentieke charme behouden – van het kleurrijke glas-in-lood tot de originele voordeur. Met een woonoppervlak van 170 m², maar liefst 5 slaapkamers en twee luxe badkamers biedt dit huis volop ruimte voor een gezin dat modern comfort zoekt in een stijlvolle, duurzame woning.

INDELING

Begane grond
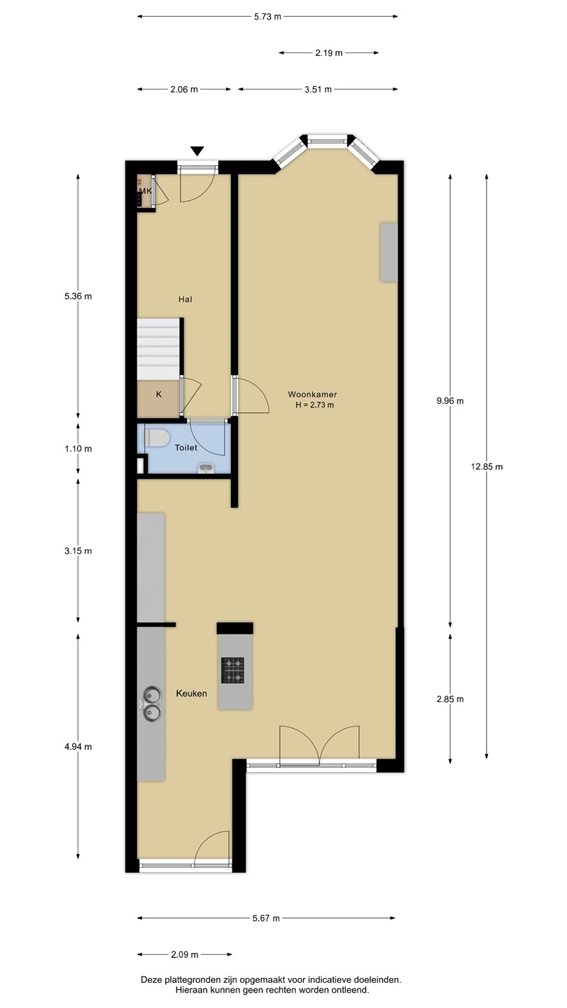
Via de klassieke entree kom je binnen in een ruime hal met hoge plafonds en een karaktervolle uitstraling. Hier bevindt zich de meterkast (met 12 groepen) en het stijlvolle gastentoilet met hangend closet en fontein. De woonkamer is heerlijk licht dankzij de grote raampartijen en dubbele openslaande deuren naar de zonnige achtertuin op het zuidoosten. Over de gehele begane grond ligt een hoogwaardig kwaliteitslaminaat (zeer krasvast en waterafstotend) in combinatie met vloerverwarming, wat zorgt voor aangenaam comfort in elk seizoen.
De moderne open keuken is een echte blikvanger en volledig op maat ontworpen met oog voor detail. De keuken beschikt over:
• Een 3L Quooker
• Composieten werkblad
• AEG (stoom)oven
• AEG inductiekookplaat met 5 zones
• AEG koel-/vriescombinatie (energielabel A+)
• AEG XL vaatwasser
• Dubbele spoelbak
• Novy-afzuigkap die op afstand te bedienen is
• Veel opbergruimte en stijlvolle sfeerverlichting

Dankzij de aanwezige UTP aansluiting op de begane grond is de woning bovendien optimaal voorbereid op snelle en stabiele internetverbindingen – ideaal voor wie thuis werkt of studeert.

Eerste verdieping
Op de eerste etage bevinden zich drie slaapkamers, waaronder een ruime hoofdslaapkamer met schuifpui naar het balkon en een kleinere kamer die uitstekend dient als babykamer of werkkamer. De luxe badkamer is voorzien van een grote inloop(regendouche), ligbad, dubbele wastafel en een tweede hangend toilet. Alle ruimtes zijn met zorg afgewerkt en brengen een warme, moderne sfeer.

Tweede verdieping
Via het prachtig gerenoveerde originele trappenhuis bereik je de tweede etage. Hier vind je nog eens twee ruime slaapkamers, een tweede badkamer met douche, wastafel en derde hangend toilet, en aansluitingen voor wasmachine en droger. Deze verdieping is verrassend licht door de dakkapellen en biedt volop opbergruimte.

BIJZONDERHEDEN

• Bouwjaar: omstreeks 1920
• Perceeloppervlak: 179 m²
• Woonoppervlak: ca. 170 m²
• Totaal 5 slaapkamers (waarvan 1 baby-/studeerkamer)
• Volledig gerenoveerd inclusief leidingwerk en elektra
• Verduurzaamd en voorzien van energielabel A+
• 8 zonnepanelen (430 Wp per stuk, 3440 Wp totaal)
• Hybride warmtepomp gekoppeld aan Remeha CV-installatie
• Luxe afwerking met kwaliteitslaminaat en vloerverwarming beneden
• Behoud van authentieke elementen zoals glas-in-lood en originele voordeur
• Zonnige achtertuin op het zuidoosten met dubbele openslaande deuren
• Prachtig gerenoveerd trappenhuis en hoogwaardige badkamers
• Rapport bouwtechnische keuring aanwezig
• Niet bewoning en asbestclausule van toepassing
• Projectnotaris Bakker en Neve in Leiderdorp

OMGEVING EN BEREIKBAARHEID

De Rijksstraatweg is een karakteristieke laan met veel groen en een prettige mix van gezinnen en jonge stellen. De woning ligt op korte afstand van buurtwinkels, supermarkten, scholen, kinderopvang en sportverenigingen. Op fietsafstand vind je zowel het bruisende centrum van Haarlem als Station Haarlem Centraal, terwijl het strand en de duinen van Bloemendaal en Zandvoort binnen twintig minuten te bereiken zijn.
Voor automobilisten is de ligging ideaal: via de N208, A200 en A9 ben je binnen korte tijd in Amsterdam, Alkmaar of op Schiphol. Daarnaast zijn er uitstekende OV verbindingen in de directe omgeving, met meerdere bushaltes op loopafstand. Zo geniet je van rust, ruimte en een groene buurt, zonder concessies te doen aan bereikbaarheid of voorzieningen.

Kortom: Rijksstraatweg 74 is een zeldzame combinatie van karakter, luxe en duurzaamheid – tot in detail gerenoveerd en helemaal klaar voor de toekomst. Een woning waar je zó in kunt trekken en jarenlang met plezier kunt wonen!

Nieuwsgierig geworden? Bel ons voor een afspraak of ga naar de website van INTO Real Estate Makelaars en selecteer direct de voor u meest geschikte tijd aangegeven bij de woning!
En wij? Wij laten u de Rijksstraatweg 74 te Haarlem graag zien! Modern Real Estate & Old-fashioned service!

ENGLISH TRANSLATION

Beautifully renovated and sustainable family home (170 m²) with 5 bedrooms, 2 bathrooms, energy label A+, and a sunny southeast-facing garden
Perfectly located in the sought-after Haarlem-Noord area, along the picturesque Rijksstraatweg, this stunning terraced home combines modern comfort with authentic character. Fully renovated from top to bottom—including all wiring and plumbing—yet retaining its original features such as stained-glass windows and the charming front door, this property offers the ideal mix of style, comfort, and sustainability.

LAYOUT

Ground floor
Step through the classic entrance into a spacious hallway with high ceilings and elegant details. Here you'll find the meter cupboard (with 12 groups) and a modern guest toilet. The bright living room features large windows and double French doors opening onto the sunny southeast-facing garden. The entire ground floor has high-quality laminate flooring (scratch- and water-resistant) and underfloor heating, ensuring year-round comfort.
The custom-designed open kitchen is a real showstopper, complete with:
• Quooker boiling-water tap
• Composite worktop
• AEG steam oven
• AEG induction hob with 5 zones
• AEG fridge/freezer (energy label A+)
• AEG XL dishwasher
• Double sink
• Novy extractor hood (remotely controlled)
• Ample storage and ambient lighting

With built-in UTP connections, the home is fully equipped for fast, reliable internet—perfect for home working or studying.

First floor
The first floor offers three bedrooms, including a spacious master bedroom with sliding doors to a private balcony, plus a smaller room ideal as a nursery or study. The luxurious bathroom features a large walk-in rain shower, bathtub, double washbasin, and a second toilet. The finish throughout is elegant and cohesive, creating a warm, modern feel.

Second floor
A beautifully restored staircase leads to the top floor, which includes two further spacious bedrooms, a second bathroom with shower, washbasin and third toilet, and space for a washer and dryer. Thanks to the dormer windows, this level is filled with natural light and offers generous storage options.

KEY FEATURES

• Built around 1920
• Plot size: 179 m²
• Living area: approx. 170 m²
• 5 bedrooms (including 1 nursery/study)
• Fully renovated including electrical and plumbing installations
• Energy-efficient with energy label A+
• 8 solar panels (430 Wp single, 3440 Wp total)
• Hybrid heat pump combined with Remeha central heating
• Luxury finishes with underfloor heating and premium laminate flooring
• Authentic elements preserved (stained glass, original front door)
• Sunny southeast-facing garden with double French doors
• Beautifully restored staircase & high-end bathrooms
• Technical inspection report available
• Non-occupancy and asbestos clause apply
• Project notary: Bakker & Neve, Leiderdorp

LOCATION

Rijksstraatweg is a green, characterful avenue with a friendly blend of families and young couples. Shops, supermarkets, schools, childcare, and sports clubs are all close by. Haarlem’s vibrant city centre and Central Station are just a short bike ride away, while the dunes and beaches of Bloemendaal and Zandvoort can be reached in under twenty minutes.
The connection by car is excellent, with the N208, A200 and A9 offering easy access to Amsterdam, Alkmaar, and Schiphol Airport. Public transport options are also within walking distance. Here, you can enjoy peace and greenery without sacrificing convenience or accessibility.

IN SUMMARY
Rijksstraatweg 74 is a rare gem—a perfect blend of charm, luxury, and sustainability. Fully renovated to the highest standards and ready to move into, this beautiful home offers everything a modern family could wish for.

Interested? Contact us today to arrange a viewing or visit the INTO Real Estate Makelaars website to select your preferred time.

Modern Real Estate, Old-Fashioned Service!

Kaart

Kenmerken

Overdracht

Referentienummer
00414
Vraagprijs
€ 1.095.000,- k.k.
Inrichting
Niet gestoffeerd
Inrichting
Niet gemeubileerd
Status
Nieuw in verkoop
Aanvaarding
In overleg
Aangeboden sinds
Vrijdag 27 maart 2026
Laatste wijziging
Woensdag 1 april 2026

Bouw

Type object
Woonhuis, herenhuis, eind woning
Soort bouw
Bestaande bouw
Bouwperiode
1920
Dakbedekking
Bitumen
Dakpannen
Type dak
Samengesteld
Keurmerken
Bouwkundige keuring
Isolatievormen
Dakisolatie
Grotendeels dubbel glas
HR-glas
Muurisolatie
Spouwmuren
Vloerisolatie
Voorzetramen

Oppervlaktes en inhoud

Perceeloppervlakte
179 m²
Woonoppervlakte
170 m²
Inhoud
604 m³
Oppervlakte gebouwgebonden buitenruimte
3 m²

Indeling

Aantal bouwlagen
3
Aantal kamers
6 (waarvan 5 slaapkamers)
Aantal badkamers
2 (en 1 apart toilet)

Locatie

Ligging
In woonwijk

Tuin

Type
Voortuin
Oriëntering
Noord west
Staat
Goed onderhouden
Tuin 2 - Type
Achtertuin
Tuin 2 - Hoofdtuin
Ja
Tuin 2 - Oriëntering
Zuidoost
Tuin 2 - Staat
Goed onderhouden

Energieverbruik

Energielabel
A+

CV ketel

Warmtebron
Gas
Combiketel
Ja
Eigendom
Eigendom

Uitrusting

Warm water
CV-ketel
Verwarmingssysteem
Centrale verwarming
Open haard
Vloerverwarming (gedeeltelijk)
Warmtepomp
Ventilatie methode
Mechanische ventilatie
Keukenvoorzieningen
Inbouwapparatuur
Kookeiland
Badkamervoorzieningen Badkamer 1
Dubbele wastafel
Inloopdouche
Ligbad
Toilet
Vloerverwarming
Wastafelmeubel
Badkamervoorzieningen Badkamer 2
Inloopdouche
Toilet
Wastafel
Wastafelmeubel
Heeft een balkon
Ja
Heeft kabel-tv
Ja
Heeft een open haard
Ja
Heeft een rookkanaal
Ja
Heeft een frans balkon
Ja
Glasvezelaansluiting aanwezig
Ja
Tuin aanwezig
Ja
Telefoonaansluiting aanwezig
Ja
Heeft zonnepanelen
Ja
Heeft ventilatie
Ja

Kadastrale gegevens

Kadastrale aanduiding
Schoten B 6464
Perceeloppervlakte
179 m²
Omvang
Geheel perceel
Eigendomsituatie
Eigen grond

Media

Video

Virtuele tour

Plattegronden